Domus Navitas. Građevinska tvrtka - generalni izvođač obiteljskih kuća. Radimo od ponedjeljka do petka (7:00–15:00).
Kontaktirajte nas – pon-pet, 7:00–15:00

ADRIATIC 1

Elegantan

Funkcionalan

Jednostavan, impresivan oblik

Idealan za obitelj

Opis projekta

Ova kompaktna obiteljska kuća spaja klasični mediteranski šarm sa suvremenim detaljima.
Dominantni četverovodni krov od terakote štiti svijetle, žbukane fasade koje su ritmički artikulirane remenskim vijencima i kutnim pilastrima. Aluminijska stolarija antracitne boje dodaje oštar moderan kontrast.
Tlocrt odvaja svijetlu dnevnu zonu, koja se otvara na južno orijentiranu natkrivenu terasu, od privatnijeg krila spavaće sobe prema prilazu. Dva okrugla stupa i bačvasti strop uokviruju terasu, stvarajući vanjsku sobu koja se može koristiti od ranog proljeća do kasne jeseni.
Izdašno predvorje izravno se povezuje s otvorenim dnevnim boravkom i blagovaonicom i omogućuje unutarnji pristup garaži. Kompaktna tehnička prostorija iza garaže sadrži dizalicu topline, toplovodni spremnik i HRV jedinicu, dok je potkrovlje rezervirano samo za skladištenje.

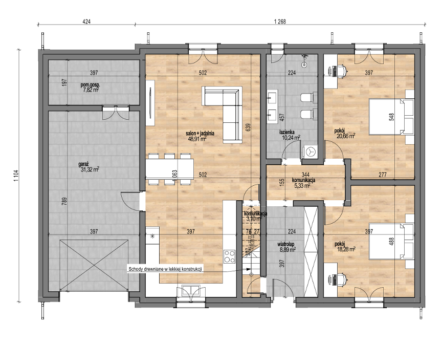
Tlocrt prizemlja
  1. Garaža: 31,32 m²
  2. Hodnik: 1,60 m² / 3,10 m²
  3. Hodnik: 5,33 m²
  4. Kupaonica: 10,24 m²
  5. Soba: 18,28 m²
  6. Soba: 20,66 m²
  7. Pomoćna prostorija: 7,82 m²
  8. Dnevni boravak + blagovaonica: 48,91 m²
  9. Predvorje: 8,89 m²
  10. Ukupno: 153,05 m² / 154,55 m²

Tehnički podaci

Tip kuće:
Prizemnica
Broj soba:
3
Broj kupaonica:
1 kupaonica
Tip garaže:
Jednokrevetna
Opseg gradnje:
Energetski učinkoviti developerski standard
Površina kata:
154,00 m²

Free estimate in 60 seconds

How much will your house cost? We know the answer!
Fill out the form and get your quote instantly!

Popularni projekti

Prizemnica
Površina: 63,08 m²
Neto cijena: 0 €
Prizemnica
Površina: 85,31 m²
Neto cijena: 0 €
Katnica
Površina: 352,10 m²
Neto cijena: 0 €
Katnica
Površina: 243,00 m²
Neto cijena: 0 €
  1. Garaža: 31,32 m²
  2. Hodnik: 1,60 m² / 3,10 m²
  3. Hodnik: 5,33 m²
  4. Kupaonica: 10,24 m²
  5. Soba: 18,28 m²
  6. Soba: 20,66 m²
  7. Pomoćna prostorija: 7,82 m²
  8. Dnevni boravak + blagovaonica: 48,91 m²
  9. Predvorje: 8,89 m²
  10. Ukupno: 153,05 m² / 154,55 m²
Grundriss Erdgeschoss
Tlocrt prvog kata
Tlocrt iskoristivog potkrovlja
  1. Garaža: 31,32 m²
  2. Hodnik: 1,60 m² / 3,10 m²
  3. Hodnik: 5,33 m²
  4. Kupaonica: 10,24 m²
  5. Soba: 18,28 m²
  6. Soba: 20,66 m²
  7. Pomoćna prostorija: 7,82 m²
  8. Dnevni boravak + blagovaonica: 48,91 m²
  9. Predvorje: 8,89 m²
  10. Ukupno: 153,05 m² / 154,55 m²
Tlocrt prizemlja

Sviđa li vam se ovaj projekt?

ADRIATIC 1

Ispunite obrazac, a mi ćemo vas nazvati kako bismo vam dali besplatnu ponudu za izgradnju kuće u vašem području.

* Obavezna polja

Tlocrt podruma
  1. Garaža: 31,32 m²
  2. Hodnik: 1,60 m² / 3,10 m²
  3. Hodnik: 5,33 m²
  4. Kupaonica: 10,24 m²
  5. Soba: 18,28 m²
  6. Soba: 20,66 m²
  7. Pomoćna prostorija: 7,82 m²
  8. Dnevni boravak + blagovaonica: 48,91 m²
  9. Predvorje: 8,89 m²
  10. Ukupno: 153,05 m² / 154,55 m²
Ground floor layout
First floor layout

Do you like this project?

ADRIATIC 1

Fill out the form, and we’ll call you back to provide a free quote for building a house in your area.

* Required fields

Usable attic layout
Basement layout