Domus Navitas. Građevinska tvrtka - generalni izvođač obiteljskih kuća. Radimo od ponedjeljka do petka (7:00–15:00).
Kontaktirajte nas – pon-pet, 7:00–15:00

Golf

Opis projekta

Kuću odlikuje moderna karoserija s ravnim krovom, velikim ostakljenim prozorima i terasnim vratima te staklenim ogradama. Zanimljiv dodatak konceptu je izgradnja pergole preko dijela terase. Kuhinja, velika blagovaonica i dnevni boravak stvaraju otvoren, svjetlom ispunjen prostor. Osjećaj prostora dodaje praznina iznad blagovaonice, uz stubište koje vodi na gornji kat. Blagovaonica tako čini središte cijele kuće. Prikladno za spavaće sobe nalazi se zasebna kupaonica, neovisna garderoba i izlaz na balkon. Osim spavaće sobe, na katu se nalaze i tri prostrane sobe koje pružaju širok raspon mogućnosti uređenja.

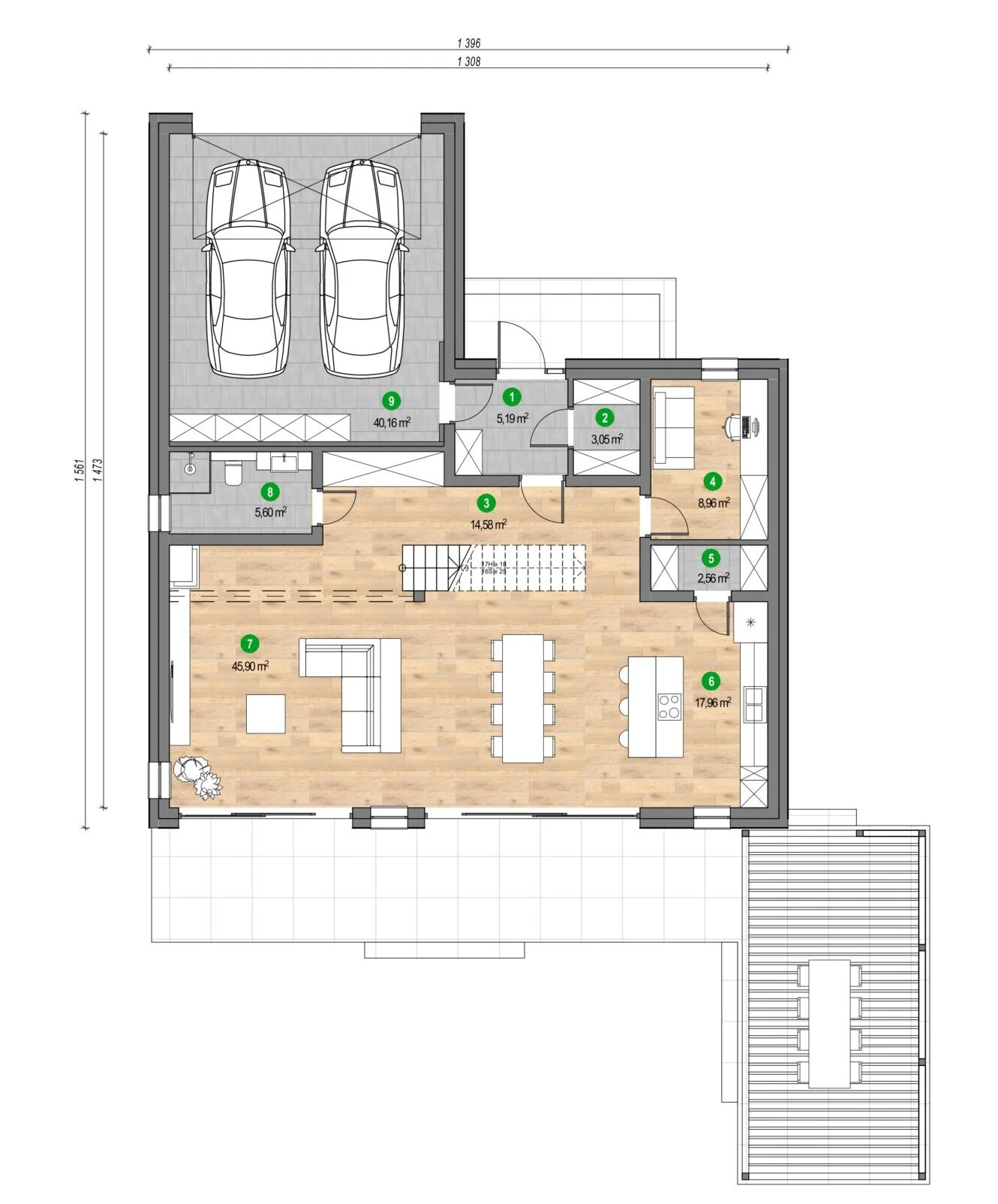
Tlocrt prizemlja
  • Predvorje: 5,19 m2
  • Ogrtač: 3,05 m2
  • Komunikacija: 14,58 m2
  • Ormar: 8,96 m2
  • Ostava: 2,56 m2
  • Kuhinja: 17,96 m2
  • Dnevni boravak + blagovaonica: 45,90 m2
  • Kupaonica: 5,60 m2
  • Garaža: 40,16 m2
  • Površina: korisna 142,54 m2; etaže: 143,96 m2
Tlocrt prvog kata
  • Komunikacija: 21,92 m2
  • Spavaća soba: 12,56 m2
  • Spavaća soba: 11,83 m2
  • Spavaća soba: 11,83 m2
  • Spavaća soba: 13,50 m2
  • Ogrtač: 8.51 m2
  • Kupaonica: 5,77 m2
  • Kupaonica: 3,26 m2
  • Kupaonica: 5,94 m2
  • Površina: korisna 93,73 m2; etaže: 95,12 m2
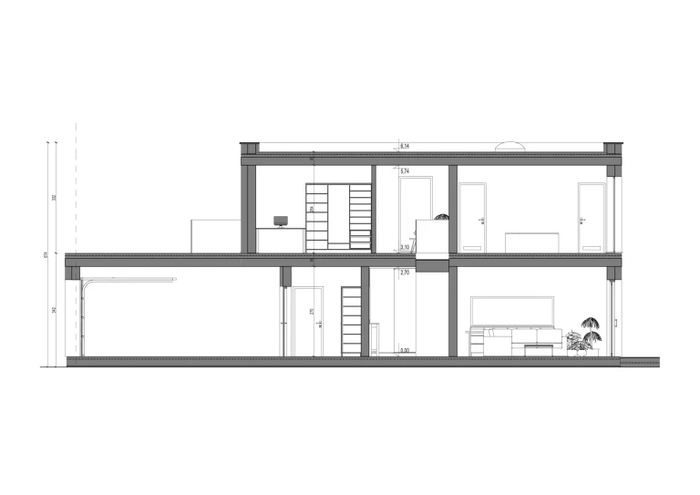
Presjeci

Tehnički podaci

Tip kuće:
Katnica
Broj soba:
5
Broj kupaonica:
3 kupaonice
Tip garaže:
Dvokrevetna
Opseg gradnje:
Energetski učinkoviti developerski standard
Površina kata:
243,00 m²

Free estimate in 60 seconds

How much will your house cost? We know the answer!
Fill out the form and get your quote instantly!

Popularni projekti

Prizemnica
Površina: 98,77 m²
Neto cijena: 0 €
Prizemnica
Površina: 85,31 m²
Neto cijena: 0 €
Katnica
Površina: 243,00 m²
Neto cijena: 0 €
Prizemnica
Površina: 120,36 m²
Neto cijena: 0 €
  • Predvorje: 5,19 m2
  • Ogrtač: 3,05 m2
  • Komunikacija: 14,58 m2
  • Ormar: 8,96 m2
  • Ostava: 2,56 m2
  • Kuhinja: 17,96 m2
  • Dnevni boravak + blagovaonica: 45,90 m2
  • Kupaonica: 5,60 m2
  • Garaža: 40,16 m2
  • Površina: korisna 142,54 m2; etaže: 143,96 m2
Grundriss Erdgeschoss
  • Komunikacija: 21,92 m2
  • Spavaća soba: 12,56 m2
  • Spavaća soba: 11,83 m2
  • Spavaća soba: 11,83 m2
  • Spavaća soba: 13,50 m2
  • Ogrtač: 8.51 m2
  • Kupaonica: 5,77 m2
  • Kupaonica: 3,26 m2
  • Kupaonica: 5,94 m2
  • Površina: korisna 93,73 m2; etaže: 95,12 m2
Tlocrt prvog kata
Tlocrt iskoristivog potkrovlja
  • Predvorje: 5,19 m2
  • Ogrtač: 3,05 m2
  • Komunikacija: 14,58 m2
  • Ormar: 8,96 m2
  • Ostava: 2,56 m2
  • Kuhinja: 17,96 m2
  • Dnevni boravak + blagovaonica: 45,90 m2
  • Kupaonica: 5,60 m2
  • Garaža: 40,16 m2
  • Površina: korisna 142,54 m2; etaže: 143,96 m2
Tlocrt prizemlja

Sviđa li vam se ovaj projekt?

Golf

Ispunite obrazac, a mi ćemo vas nazvati kako bismo vam dali besplatnu ponudu za izgradnju kuće u vašem području.

* Obavezna polja

Tlocrt podruma
  • Predvorje: 5,19 m2
  • Ogrtač: 3,05 m2
  • Komunikacija: 14,58 m2
  • Ormar: 8,96 m2
  • Ostava: 2,56 m2
  • Kuhinja: 17,96 m2
  • Dnevni boravak + blagovaonica: 45,90 m2
  • Kupaonica: 5,60 m2
  • Garaža: 40,16 m2
  • Površina: korisna 142,54 m2; etaže: 143,96 m2
Ground floor layout
  • Komunikacija: 21,92 m2
  • Spavaća soba: 12,56 m2
  • Spavaća soba: 11,83 m2
  • Spavaća soba: 11,83 m2
  • Spavaća soba: 13,50 m2
  • Ogrtač: 8.51 m2
  • Kupaonica: 5,77 m2
  • Kupaonica: 3,26 m2
  • Kupaonica: 5,94 m2
  • Površina: korisna 93,73 m2; etaže: 95,12 m2
First floor layout

Do you like this project?

Golf

Fill out the form, and we’ll call you back to provide a free quote for building a house in your area.

* Required fields

Usable attic layout
Basement layout