Domus Navitas. Bauunternehmen - Generalunternehmer von Einfamilienhäusern. Wir arbeiten von Montag bis Freitag (7:00–15:00).
Kontaktieren Sie uns – Mo–Fr, 7:00–15:00

Rufen

oder schreiben Sie

Vanguard

Projektbeschreibung

Mit Liebe zum Detail haben wir ein Design geschaffen, das sowohl das Erbe von Masowien als auch die zeitgenössische Eleganz widerspiegelt.
Die Holzfassade, die auf Ökologie und Natur anspielt, bildet einen perfekten Kontrast zur Umgebung, während die Satteldächer das Ganze vervollständigen und ein elegantes und zusammenhängendes Bild schaffen.
Das Projekt wird diejenigen interessieren, die moderne Kombinationen mit einem Hauch von Klassik bevorzugen. Das Gebäude verbindet die Funktionalität des ersten Stocks mit einem charmanten Dachgeschoss, und was besondere Aufmerksamkeit auf sich zieht, sind die großen Glaswände im Wohnzimmer, die eine fast filmische Leinwand auf dem Panorama der umliegenden Landschaft schaffen. Gleich nebenan befindet sich eine Designer-Scheune in einem tiefen Schwarzton, der den einzigartigen Charakter des Ortes unterstreicht.

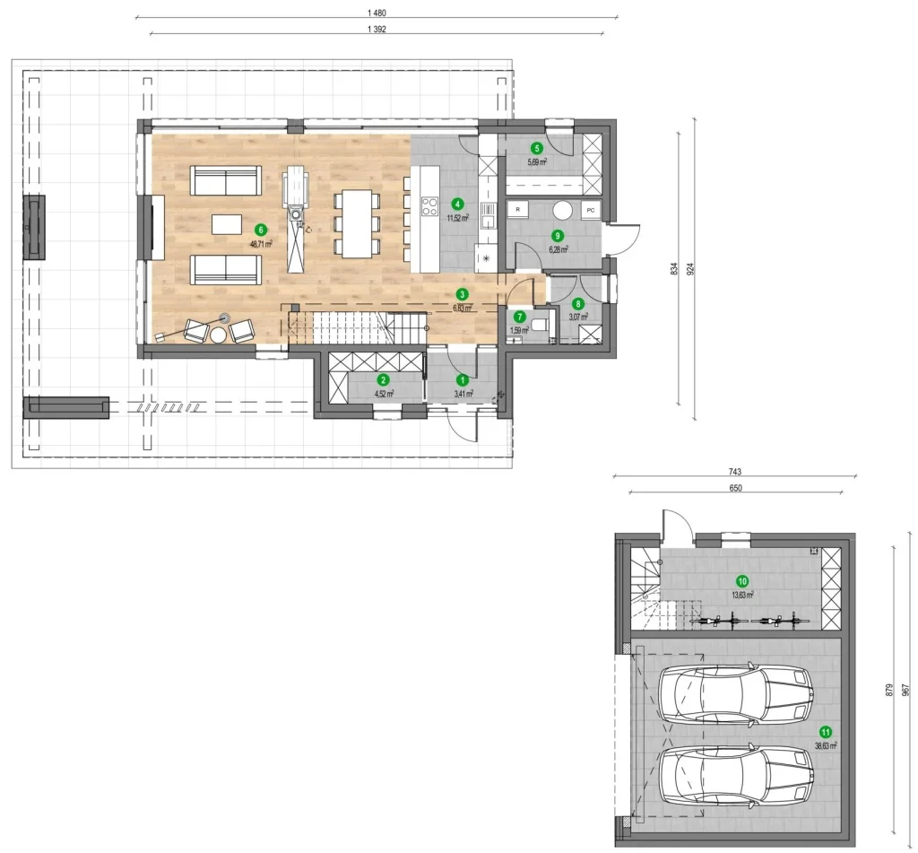
Grundriss Erdgeschoss
  1. Vestibül: 3.41 m2

  2. Abrichten

    Zimmer
    : 4.52 m2
  3. Komm.: 6.83 m2
  4. Küche: 11.52 m2
  5. Speisekammer: 5.69 m2
  6. Wohnzimmer + Esszimmer: 48,71 m2
  7. WC: 1.59 m2
  8. Waschraum: 3.07 m2
  9. Komm.: 6.28 m2
  10. Hauswirtschaftsraum: 13.63 m2
  11. Garage: 38.63 m2
  12. Nutzbare Fläche des Wohngebäudes: 91.62 m2.
    Nutzbare Fläche des Nebengebäudes: 52.26 m2.
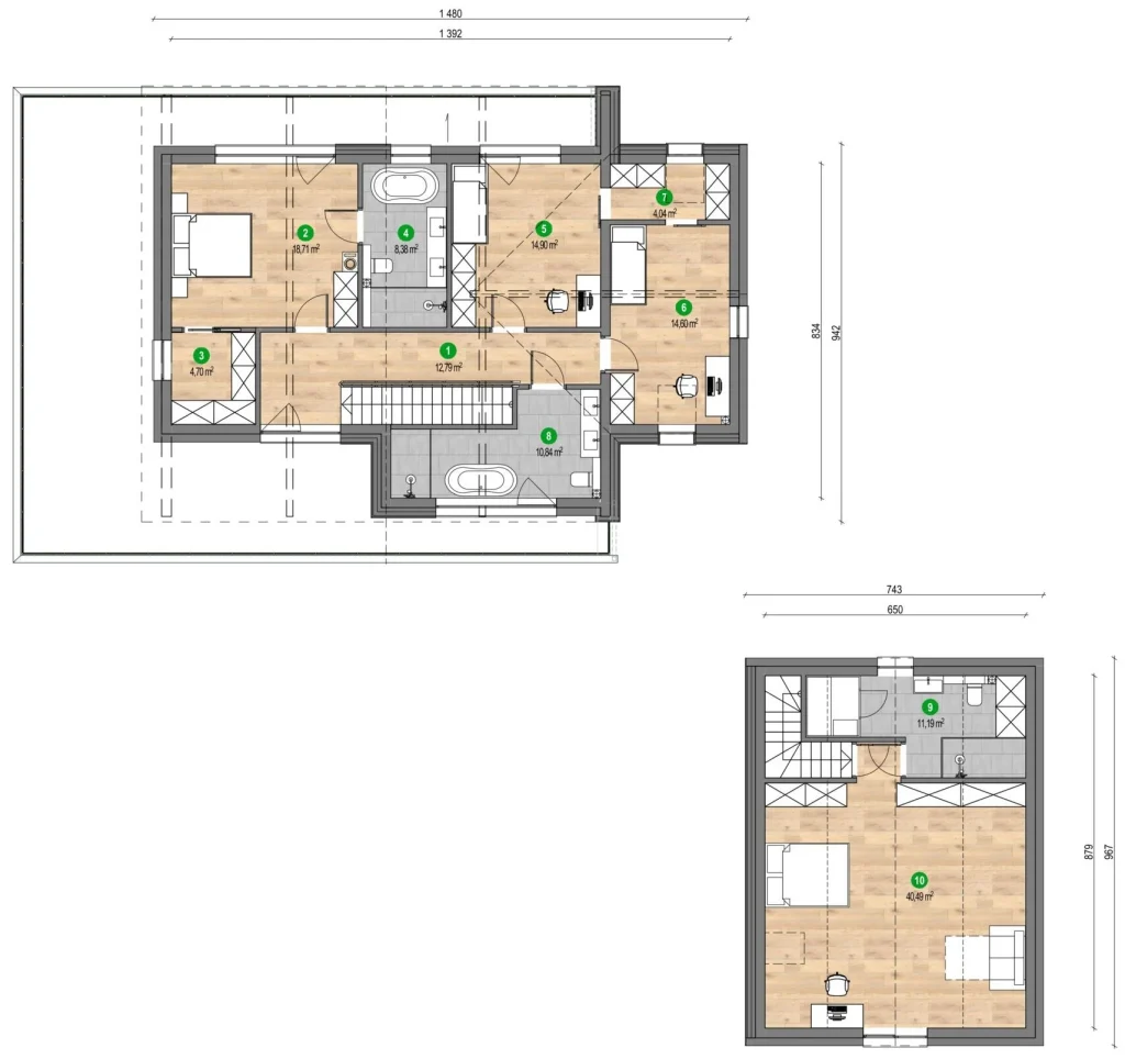
Grundriss Obergeschoss
  1. Kommunikation: 12.79 m2
  2. Schlafzimmer: 18.71 m2

  3. Abrichten

    Zimmer
    : 4.70 m2
  4. Badezimmer: 8.38 m2
  5. Schlafzimmer: 14.90 m2
  6. Schlafzimmer: 14, 60 m2

  7. Abrichten

    Zimmer
    : 4.04 m2
  8. Badezimmer: 10.84 m2
  9. Badezimmer: 11.19 m2
  10. Schlafzimmer: 40.49 m2
  11. Fläche. Nutzbare Fläche des Wohngebäudes: 88.96 m2 .
    Nutzbare Fläche des Nebengebäudes: 51.68 m2.
Schnitte

Technische Daten

Haustyp:
Zweistöckiges Haus
Anzahl der Zimmer:
5
Anzahl der Badezimmer:
2 Badezimmer
Garagentyp:
Doppelt

Free estimate in 60 seconds

How much will your house cost? We know the answer!
Fill out the form and get your quote instantly!

Beliebte Projekte

Einstöckiges Haus
Wohnfläche: 180,33 m²
Nettopreis: 0 €
Zweistöckiges Haus
Wohnfläche: 257,66 m²
Nettopreis: 0 €
Zweistöckiges Haus
Wohnfläche: 352,10 m²
Nettopreis: 0 €
Einstöckiges Haus
Wohnfläche: 63,08 m²
Nettopreis: 0 €
  1. Vestibül: 3.41 m2

  2. Abrichten

    Zimmer
    : 4.52 m2
  3. Komm.: 6.83 m2
  4. Küche: 11.52 m2
  5. Speisekammer: 5.69 m2
  6. Wohnzimmer + Esszimmer: 48,71 m2
  7. WC: 1.59 m2
  8. Waschraum: 3.07 m2
  9. Komm.: 6.28 m2
  10. Hauswirtschaftsraum: 13.63 m2
  11. Garage: 38.63 m2
  12. Nutzbare Fläche des Wohngebäudes: 91.62 m2.
    Nutzbare Fläche des Nebengebäudes: 52.26 m2.
Grundriss Erdgeschoss
  1. Kommunikation: 12.79 m2
  2. Schlafzimmer: 18.71 m2

  3. Abrichten

    Zimmer
    : 4.70 m2
  4. Badezimmer: 8.38 m2
  5. Schlafzimmer: 14.90 m2
  6. Schlafzimmer: 14, 60 m2

  7. Abrichten

    Zimmer
    : 4.04 m2
  8. Badezimmer: 10.84 m2
  9. Badezimmer: 11.19 m2
  10. Schlafzimmer: 40.49 m2
  11. Fläche. Nutzbare Fläche des Wohngebäudes: 88.96 m2 .
    Nutzbare Fläche des Nebengebäudes: 51.68 m2.
Grundriss Obergeschoss
Grundriss Dachboden
  1. Vestibül: 3.41 m2

  2. Abrichten

    Zimmer
    : 4.52 m2
  3. Komm.: 6.83 m2
  4. Küche: 11.52 m2
  5. Speisekammer: 5.69 m2
  6. Wohnzimmer + Esszimmer: 48,71 m2
  7. WC: 1.59 m2
  8. Waschraum: 3.07 m2
  9. Komm.: 6.28 m2
  10. Hauswirtschaftsraum: 13.63 m2
  11. Garage: 38.63 m2
  12. Nutzbare Fläche des Wohngebäudes: 91.62 m2.
    Nutzbare Fläche des Nebengebäudes: 52.26 m2.
Grundriss Erdgeschoss

Gefällt Ihnen dieses Projekt?

Vanguard

Füllen Sie das Formular aus, und wir rufen Sie zurück, um Ihnen ein kostenloses Angebot für den Hausbau in Ihrer Region zu erstellen.

* Pflichtfelder

Grundriss Kellergeschoss
  1. Vestibül: 3.41 m2

  2. Abrichten

    Zimmer
    : 4.52 m2
  3. Komm.: 6.83 m2
  4. Küche: 11.52 m2
  5. Speisekammer: 5.69 m2
  6. Wohnzimmer + Esszimmer: 48,71 m2
  7. WC: 1.59 m2
  8. Waschraum: 3.07 m2
  9. Komm.: 6.28 m2
  10. Hauswirtschaftsraum: 13.63 m2
  11. Garage: 38.63 m2
  12. Nutzbare Fläche des Wohngebäudes: 91.62 m2.
    Nutzbare Fläche des Nebengebäudes: 52.26 m2.
Ground floor layout

Do you like this project?

Vanguard

Fill out the form, and we’ll call you back to provide a free quote for building a house in your area.

* Required fields

  1. Kommunikation: 12.79 m2
  2. Schlafzimmer: 18.71 m2

  3. Abrichten

    Zimmer
    : 4.70 m2
  4. Badezimmer: 8.38 m2
  5. Schlafzimmer: 14.90 m2
  6. Schlafzimmer: 14, 60 m2

  7. Abrichten

    Zimmer
    : 4.04 m2
  8. Badezimmer: 10.84 m2
  9. Badezimmer: 11.19 m2
  10. Schlafzimmer: 40.49 m2
  11. Fläche. Nutzbare Fläche des Wohngebäudes: 88.96 m2 .
    Nutzbare Fläche des Nebengebäudes: 51.68 m2.
First floor layout
Usable attic layout