Domus Navitas. Bauunternehmen - Generalunternehmer von Einfamilienhäusern. Wir arbeiten von Montag bis Freitag (7:00–15:00).
Kontaktieren Sie uns – Mo–Fr, 7:00–15:00

Rufen

oder schreiben Sie

ADRIATIC 22

Projektbeschreibung

Das Design des Hauses stellt ein modernes, geräumiges Gebäude mit einfachen und eleganten Formen dar, das perfekt auf die Bedürfnisse moderner Familien zugeschnitten ist. Der zweistöckige Grundriss bietet weitläufige Innenräume mit großen Verglasungen, die für natürliches Licht und direkten Kontakt mit der Umgebung sorgen. Das Haus zeichnet sich durch einen minimalistischen, geometrischen Körper aus, in dem einfache Linien und eine Kombination aus dunklen und hellen Fassadenelementen dominieren. Die Verwendung moderner Materialien wie Strukturputz und Fassadenplatten verleiht dem Projekt einen einzigartigen Charakter und ein modernes Aussehen.

Im ersten Stock befindet sich ein geräumiges Wohnzimmer, das mit einem Esszimmer und einer offenen Küche kombiniert ist und einen idealen Ort bietet, um Zeit mit der Familie zu verbringen. Das Gebäude verfügt auch über zusätzliche Hauswirtschaftsräume, eine Garage für zwei Autos und große Terrassen, die sich perfekt zum Entspannen eignen. Im ersten Stock befinden sich Schlafzimmer und moderne Badezimmer für Komfort. Dank der durchdachten Raumaufteilung bietet das Haus eine große Funktionalität, die auch die Bedürfnisse der anspruchsvollsten Nutzer erfüllt. Das Projekt zeichnet sich durch seine Modernität und Liebe zum Detail aus, was es ideal für diejenigen macht, die ein elegantes und funktionales Zuhause für die ganze Familie suchen.

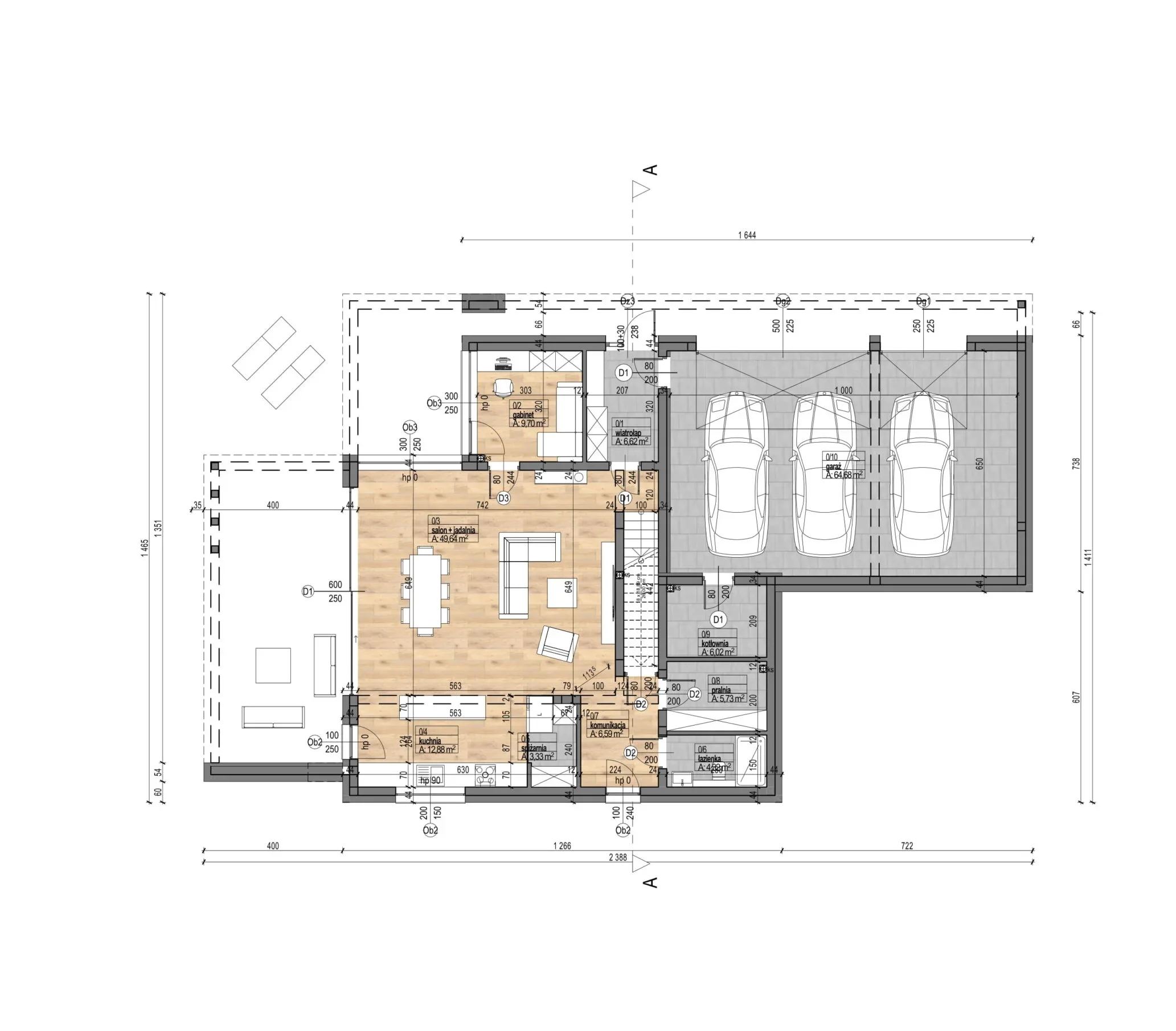
Grundriss Erdgeschoss
  • Vorraum: 6,62 m2
  • Schrank: 9,70 m2
  • Wohnzimmer+Esszimmer: 49,64 m2
  • Küche: 12,88 m2
  • Speisekammer: 3,33 m2
  • Badezimmer: 4,32 m2
  • Kommunikation: 6,59 m2
  • Waschraum: 5,73 m2
  • Heizungsraum: 6,02 m2
  • Garage: 64,68 m2
  • Fläche: nutzbar 169,51 m2; Etagen: 169,51 m2
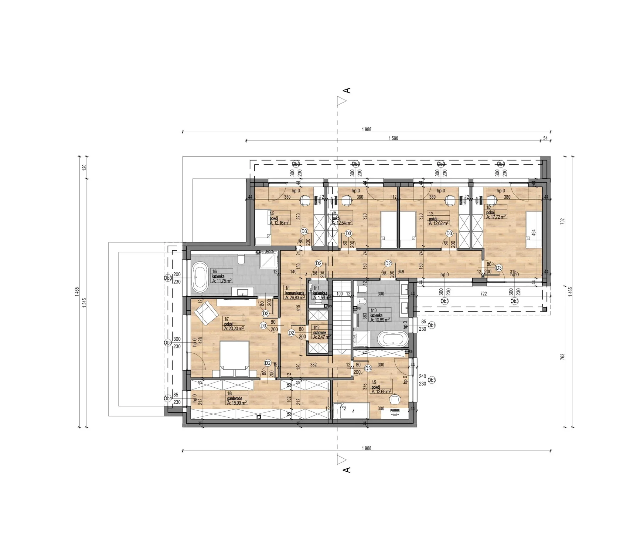
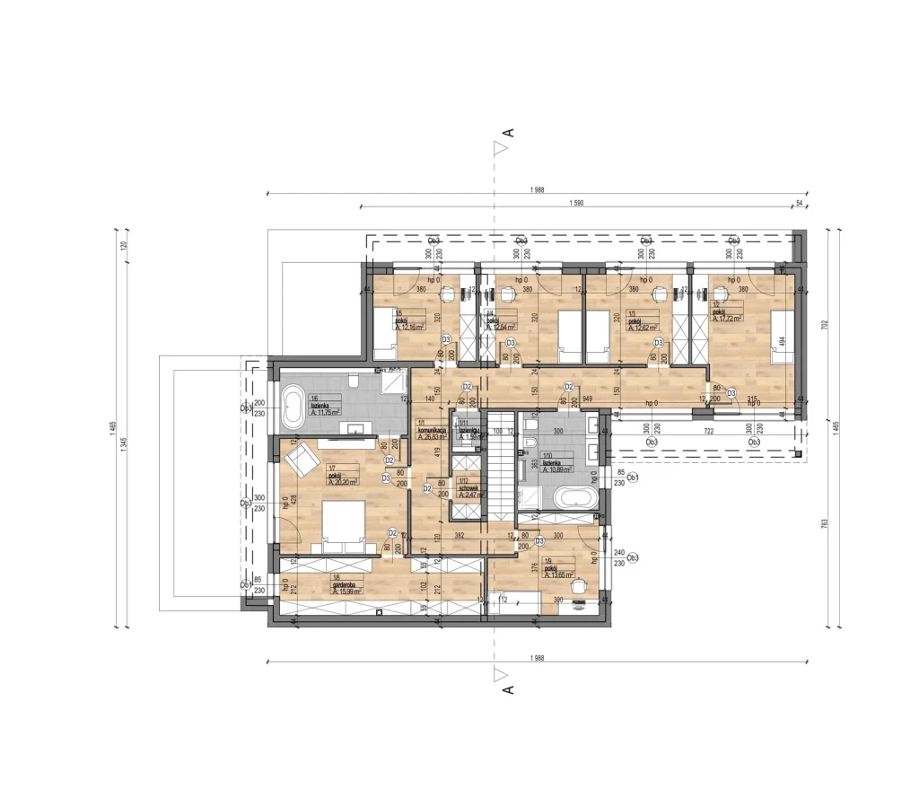
Grundriss Obergeschoss
  • Kommunikation: 26,83 m2
  • Salon: 17,72 m2
  • Salon: 12,62 m2
  • Salon: 12,54 m2
  • Salon: 12,16 m2
  • Badezimmer: 11,75 m2
  • Salon: 20,20 m2
  • Dachgeschoss: 15,99 m2
  • Schlafzimmer: 13.65 m2
  • Badezimmer: 10,89 m2
  • Badezimmer: 1,59 m2
  • Abstellraum: 2,47 m2
  • Nutzfläche: 158,41 m2; Etagen: 158,41 m2

Technische Daten

Haustyp:
Zweistöckiges Haus
Anzahl der Zimmer:
8
Anzahl der Badezimmer:
4 Badezimmer
Garagentyp:
Doppelt
Bauumfang:
Energieeffizienter Bauträgerstandard

Free estimate in 60 seconds

How much will your house cost? We know the answer!
Fill out the form and get your quote instantly!

Beliebte Projekte

Einstöckiges Haus
Wohnfläche: 63,08 m²
Nettopreis: 0 €
Einstöckiges Haus
Wohnfläche: 53,88 m²
Nettopreis: 0 €
Einstöckiges Haus
Wohnfläche: 180,33 m²
Nettopreis: 0 €
Einstöckiges Haus
Wohnfläche: 146,00 m²
Nettopreis: 0 €
  • Vorraum: 6,62 m2
  • Schrank: 9,70 m2
  • Wohnzimmer+Esszimmer: 49,64 m2
  • Küche: 12,88 m2
  • Speisekammer: 3,33 m2
  • Badezimmer: 4,32 m2
  • Kommunikation: 6,59 m2
  • Waschraum: 5,73 m2
  • Heizungsraum: 6,02 m2
  • Garage: 64,68 m2
  • Fläche: nutzbar 169,51 m2; Etagen: 169,51 m2
Grundriss Erdgeschoss
  • Kommunikation: 26,83 m2
  • Salon: 17,72 m2
  • Salon: 12,62 m2
  • Salon: 12,54 m2
  • Salon: 12,16 m2
  • Badezimmer: 11,75 m2
  • Salon: 20,20 m2
  • Dachgeschoss: 15,99 m2
  • Schlafzimmer: 13.65 m2
  • Badezimmer: 10,89 m2
  • Badezimmer: 1,59 m2
  • Abstellraum: 2,47 m2
  • Nutzfläche: 158,41 m2; Etagen: 158,41 m2
Grundriss Obergeschoss
Grundriss Dachboden
  • Vorraum: 6,62 m2
  • Schrank: 9,70 m2
  • Wohnzimmer+Esszimmer: 49,64 m2
  • Küche: 12,88 m2
  • Speisekammer: 3,33 m2
  • Badezimmer: 4,32 m2
  • Kommunikation: 6,59 m2
  • Waschraum: 5,73 m2
  • Heizungsraum: 6,02 m2
  • Garage: 64,68 m2
  • Fläche: nutzbar 169,51 m2; Etagen: 169,51 m2
Grundriss Erdgeschoss

Gefällt Ihnen dieses Projekt?

ADRIATIC 22

Füllen Sie das Formular aus, und wir rufen Sie zurück, um Ihnen ein kostenloses Angebot für den Hausbau in Ihrer Region zu erstellen.

* Pflichtfelder

Grundriss Kellergeschoss
  • Vorraum: 6,62 m2
  • Schrank: 9,70 m2
  • Wohnzimmer+Esszimmer: 49,64 m2
  • Küche: 12,88 m2
  • Speisekammer: 3,33 m2
  • Badezimmer: 4,32 m2
  • Kommunikation: 6,59 m2
  • Waschraum: 5,73 m2
  • Heizungsraum: 6,02 m2
  • Garage: 64,68 m2
  • Fläche: nutzbar 169,51 m2; Etagen: 169,51 m2
Ground floor layout
  • Kommunikation: 26,83 m2
  • Salon: 17,72 m2
  • Salon: 12,62 m2
  • Salon: 12,54 m2
  • Salon: 12,16 m2
  • Badezimmer: 11,75 m2
  • Salon: 20,20 m2
  • Dachgeschoss: 15,99 m2
  • Schlafzimmer: 13.65 m2
  • Badezimmer: 10,89 m2
  • Badezimmer: 1,59 m2
  • Abstellraum: 2,47 m2
  • Nutzfläche: 158,41 m2; Etagen: 158,41 m2
First floor layout

Do you like this project?

ADRIATIC 22

Fill out the form, and we’ll call you back to provide a free quote for building a house in your area.

* Required fields

Usable attic layout
Basement layout