Domus Navitas. Bauunternehmen - Generalunternehmer von Einfamilienhäusern. Wir arbeiten von Montag bis Freitag (7:00–15:00).
Kontaktieren Sie uns – Mo–Fr, 7:00–15:00

Rufen

oder schreiben Sie

ADRIATIC 15

Projektbeschreibung

Eingebettet am Meer kombiniert dieser moderne einstöckige Bungalow einen strahlend weißen Putz mit einem anthrazitfarbenen Walmdach und einer warmen vertikalen Holzverkleidung. Große Panoramafenster lassen das Küstenlicht herein, während ein privater Pool und eine Steinterrasse den Wohnraum im Freien erweitern. Die kompakte Stellfläche, die dezenten grauen Akzente und die zentral platzierte Eingangstür aus Holz sorgen für eine saubere, mühelose Ästhetik – perfekt für ein entspanntes Leben am Meer.

Grundriss Erdgeschoss
  • Arbeitszimmer: 11,30 m²
  • Treppenhaus: 6,92 m²
  • Kommunikation: 6,49 m²
  • Küche: 7,37 m²
  • Badezimmer: 6,19 m²
  • Wohnzimmer + Esszimmer: 30,40 m²
  • Schlafzimmer: 15,07 m²
  • WC: 1,64 m²
  • Vorraum: 5,51 m²
  • Gesamt: 90.89 m²
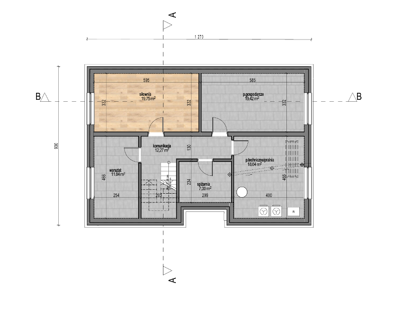
Grundriss Kellergeschoss
  • Kommunikation: 6,14 m²
  • Hauswirtschaftsraum: 19,42 m²
  • Technik-/Waschküche: 18,64 m²
  • Fitnessraum: 19,75 m²
  • Speisekammer: 7,00 m²
  • Werkstatt: 11,84 m²
  • Gesamt: 82.79 m²

Technische Daten

Haustyp:
Zweistöckiges Haus
Anzahl der Zimmer:
2
Anzahl der Badezimmer:
1 Badezimmer
Garagentyp:
Keine
Bauumfang:
Energieeffizienter Bauträgerstandard

Free estimate in 60 seconds

How much will your house cost? We know the answer!
Fill out the form and get your quote instantly!

Beliebte Projekte

Einstöckiges Haus
Wohnfläche: 98,77 m²
Nettopreis: 0 €
Zweistöckiges Haus
Wohnfläche: 243,00 m²
Nettopreis: 0 €
Einstöckiges Haus
Wohnfläche: 179,00 m²
Nettopreis: 0 €
Einstöckiges Haus
Wohnfläche: 180,33 m²
Nettopreis: 0 €
  • Arbeitszimmer: 11,30 m²
  • Treppenhaus: 6,92 m²
  • Kommunikation: 6,49 m²
  • Küche: 7,37 m²
  • Badezimmer: 6,19 m²
  • Wohnzimmer + Esszimmer: 30,40 m²
  • Schlafzimmer: 15,07 m²
  • WC: 1,64 m²
  • Vorraum: 5,51 m²
  • Gesamt: 90.89 m²
Grundriss Erdgeschoss
Grundriss Obergeschoss
Grundriss Dachboden
  • Arbeitszimmer: 11,30 m²
  • Treppenhaus: 6,92 m²
  • Kommunikation: 6,49 m²
  • Küche: 7,37 m²
  • Badezimmer: 6,19 m²
  • Wohnzimmer + Esszimmer: 30,40 m²
  • Schlafzimmer: 15,07 m²
  • WC: 1,64 m²
  • Vorraum: 5,51 m²
  • Gesamt: 90.89 m²
Grundriss Erdgeschoss

Gefällt Ihnen dieses Projekt?

ADRIATIC 15

Füllen Sie das Formular aus, und wir rufen Sie zurück, um Ihnen ein kostenloses Angebot für den Hausbau in Ihrer Region zu erstellen.

* Pflichtfelder

  • Kommunikation: 6,14 m²
  • Hauswirtschaftsraum: 19,42 m²
  • Technik-/Waschküche: 18,64 m²
  • Fitnessraum: 19,75 m²
  • Speisekammer: 7,00 m²
  • Werkstatt: 11,84 m²
  • Gesamt: 82.79 m²
Grundriss Kellergeschoss
  • Arbeitszimmer: 11,30 m²
  • Treppenhaus: 6,92 m²
  • Kommunikation: 6,49 m²
  • Küche: 7,37 m²
  • Badezimmer: 6,19 m²
  • Wohnzimmer + Esszimmer: 30,40 m²
  • Schlafzimmer: 15,07 m²
  • WC: 1,64 m²
  • Vorraum: 5,51 m²
  • Gesamt: 90.89 m²
Ground floor layout
First floor layout

Do you like this project?

ADRIATIC 15

Fill out the form, and we’ll call you back to provide a free quote for building a house in your area.

* Required fields

Usable attic layout
  • Kommunikation: 6,14 m²
  • Hauswirtschaftsraum: 19,42 m²
  • Technik-/Waschküche: 18,64 m²
  • Fitnessraum: 19,75 m²
  • Speisekammer: 7,00 m²
  • Werkstatt: 11,84 m²
  • Gesamt: 82.79 m²
Basement layout