Domus Navitas. Građevinska tvrtka - generalni izvođač obiteljskih kuća. Radimo od ponedjeljka do petka (7:00–15:00).
Kontaktirajte nas – pon-pet, 7:00–15:00

ADRIATIC 21

Opis projekta

Ova upečatljiva dvoetažna vila spaja strmi dvovodni krov s oštrom bijelom žbukom, crijepom od drvenog ugljena i toplim drvenim oblogama. Terasa pune širine sa staklenim ogradama obavija gornji kat, proširujući glavne spavaće sobe prema panoramskom pogledu na more i vrt, dok velika klizna vrata povezuju dnevni prostor otvorenog plana s drvenim sunčalištem ispod. Garaža i ulaz u prizemlju uvučeni su iza okomitih drvenih ploča za profinjen, minimalistički izgled. Izolacija visokih performansi, solarno orijentirano ostakljenje i prirodni materijali pružaju moderno obalno utočište koje uravnotežuje stil s održivom udobnošću.

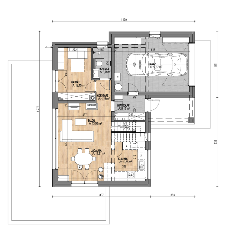
Tlocrt prizemlja
  • Ured: 12,15 m²
  • Garaža: 27,67 m²
  • Blagovaonica: 11.21 m²
  • Hodnik: 4,19 m²
  • Kuhinja: 10,35 m²
  • Kupaonica: 3,78 m²
  • Dnevni boravak: 13.55 m²
  • Ulazna dvorana: 5.15 m²
  • Ukupno: 88.05 m²
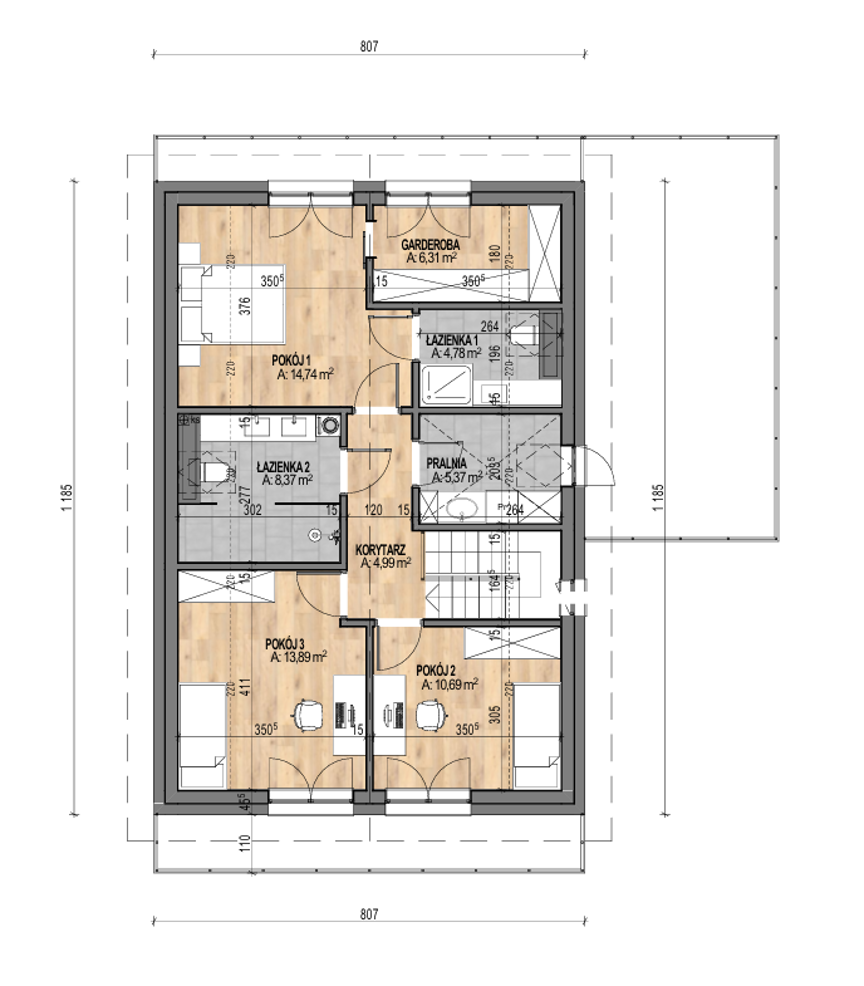
Tlocrt prvog kata
  • Ormar: 6,31 m²
  • Hodnik: 4,99 m²
  • Kupaonica 1: 4,78 m²
  • Kupaonica 2: 7,04 m²
  • Soba 1: 12,95 m²
  • Soba 2: 10,69 m²
  • Soba 3: 11,93 m²
  • Praonica rublja: 4.40 m²
  • Ukupno: 63.09 m²

Tehnički podaci

Tip kuće:
Katnica
Broj soba:
5
Broj kupaonica:
3 kupaonice
Tip garaže:
Jednokrevetna
Opseg gradnje:
Energetski učinkoviti developerski standard
Površina kata:
151,14 m²

Free estimate in 60 seconds

How much will your house cost? We know the answer!
Fill out the form and get your quote instantly!

Popularni projekti

Prizemnica s potkrovljem
Površina: 181,62 m²
Neto cijena: 0 €
Prizemnica
Površina: 146,00 m²
Neto cijena: 0 €
Katnica
Površina: 352,10 m²
Neto cijena: 0 €
Prizemnica
Površina: 120,36 m²
Neto cijena: 0 €
  • Ured: 12,15 m²
  • Garaža: 27,67 m²
  • Blagovaonica: 11.21 m²
  • Hodnik: 4,19 m²
  • Kuhinja: 10,35 m²
  • Kupaonica: 3,78 m²
  • Dnevni boravak: 13.55 m²
  • Ulazna dvorana: 5.15 m²
  • Ukupno: 88.05 m²
Grundriss Erdgeschoss
  • Ormar: 6,31 m²
  • Hodnik: 4,99 m²
  • Kupaonica 1: 4,78 m²
  • Kupaonica 2: 7,04 m²
  • Soba 1: 12,95 m²
  • Soba 2: 10,69 m²
  • Soba 3: 11,93 m²
  • Praonica rublja: 4.40 m²
  • Ukupno: 63.09 m²
Tlocrt prvog kata
Tlocrt iskoristivog potkrovlja
  • Ured: 12,15 m²
  • Garaža: 27,67 m²
  • Blagovaonica: 11.21 m²
  • Hodnik: 4,19 m²
  • Kuhinja: 10,35 m²
  • Kupaonica: 3,78 m²
  • Dnevni boravak: 13.55 m²
  • Ulazna dvorana: 5.15 m²
  • Ukupno: 88.05 m²
Tlocrt prizemlja

Sviđa li vam se ovaj projekt?

ADRIATIC 21

Ispunite obrazac, a mi ćemo vas nazvati kako bismo vam dali besplatnu ponudu za izgradnju kuće u vašem području.

* Obavezna polja

Tlocrt podruma
  • Ured: 12,15 m²
  • Garaža: 27,67 m²
  • Blagovaonica: 11.21 m²
  • Hodnik: 4,19 m²
  • Kuhinja: 10,35 m²
  • Kupaonica: 3,78 m²
  • Dnevni boravak: 13.55 m²
  • Ulazna dvorana: 5.15 m²
  • Ukupno: 88.05 m²
Ground floor layout
  • Ormar: 6,31 m²
  • Hodnik: 4,99 m²
  • Kupaonica 1: 4,78 m²
  • Kupaonica 2: 7,04 m²
  • Soba 1: 12,95 m²
  • Soba 2: 10,69 m²
  • Soba 3: 11,93 m²
  • Praonica rublja: 4.40 m²
  • Ukupno: 63.09 m²
First floor layout

Do you like this project?

ADRIATIC 21

Fill out the form, and we’ll call you back to provide a free quote for building a house in your area.

* Required fields

Usable attic layout
Basement layout