Domus Navitas. Građevinska tvrtka - generalni izvođač obiteljskih kuća. Radimo od ponedjeljka do petka (7:00–15:00).
Kontaktirajte nas – pon-pet, 7:00–15:00

ADRIATIC 19

Opis projekta

Dizajnirana za opušten život na obali, ova kompaktna jednokatnica spaja oštru bijelu žbuku s toplim drvenim stupovima i okvirima prozora ispod tamnog kosog krova. Izdašna omotana veranda stvara vanjski salon koji teče izravno iz dnevnog boravka ispunjenog svjetlom, uokvirenog visokim zabatnim prozorom. Integrirana drvena nadstrešnica za automobil proteže se od linije krova, pružajući zaštićeno parkiralište bez narušavanja čiste siluete. Kameni detalji oko ulaza dodaju suptilnu teksturu, dok energetski učinkovita konstrukcija i promišljena orijentacija održavaju dom ugodnim tijekom cijele godine.

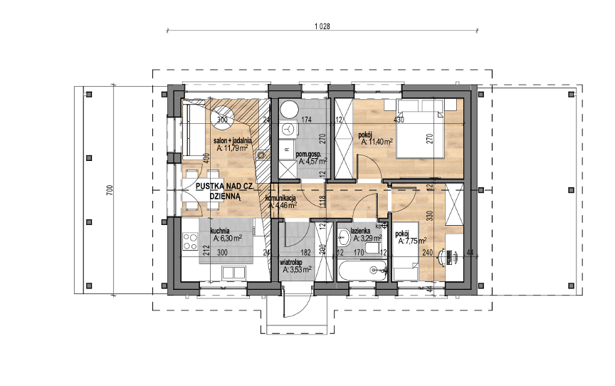
Tlocrt prizemlja
  • Vjetrobran: 3,53 m²
  • Komunikacija: 4,46 m²
  • Kupaonica: 3,29 m²
  • Soba: 7,75 m²
  • Soba: 11,40 m²
  • Gospodarska prostorija: 4,57 m²
  • Dnevni boravak + Blagovaonica: 11,79 m²
  • Kuhinja: 6,30 m²
  • Ukupno: 53,09 m²

Tehnički podaci

Tip kuće:
Prizemnica
Broj soba:
3
Broj kupaonica:
1 kupaonica
Tip garaže:
Nema
Opseg gradnje:
Energetski učinkoviti developerski standard
Površina kata:
53,09 m²

Free estimate in 60 seconds

How much will your house cost? We know the answer!
Fill out the form and get your quote instantly!

Popularni projekti

Prizemnica
Površina: 120,36 m²
Neto cijena: 0 €
Prizemnica
Površina: 146,00 m²
Neto cijena: 0 €
Prizemnica
Površina: 63,08 m²
Neto cijena: 0 €
Prizemnica
Površina: 180,33 m²
Neto cijena: 0 €
  • Vjetrobran: 3,53 m²
  • Komunikacija: 4,46 m²
  • Kupaonica: 3,29 m²
  • Soba: 7,75 m²
  • Soba: 11,40 m²
  • Gospodarska prostorija: 4,57 m²
  • Dnevni boravak + Blagovaonica: 11,79 m²
  • Kuhinja: 6,30 m²
  • Ukupno: 53,09 m²
Grundriss Erdgeschoss
Tlocrt prvog kata
Tlocrt iskoristivog potkrovlja
  • Vjetrobran: 3,53 m²
  • Komunikacija: 4,46 m²
  • Kupaonica: 3,29 m²
  • Soba: 7,75 m²
  • Soba: 11,40 m²
  • Gospodarska prostorija: 4,57 m²
  • Dnevni boravak + Blagovaonica: 11,79 m²
  • Kuhinja: 6,30 m²
  • Ukupno: 53,09 m²
Tlocrt prizemlja

Sviđa li vam se ovaj projekt?

ADRIATIC 19

Ispunite obrazac, a mi ćemo vas nazvati kako bismo vam dali besplatnu ponudu za izgradnju kuće u vašem području.

* Obavezna polja

Tlocrt podruma
  • Vjetrobran: 3,53 m²
  • Komunikacija: 4,46 m²
  • Kupaonica: 3,29 m²
  • Soba: 7,75 m²
  • Soba: 11,40 m²
  • Gospodarska prostorija: 4,57 m²
  • Dnevni boravak + Blagovaonica: 11,79 m²
  • Kuhinja: 6,30 m²
  • Ukupno: 53,09 m²
Ground floor layout
First floor layout

Do you like this project?

ADRIATIC 19

Fill out the form, and we’ll call you back to provide a free quote for building a house in your area.

* Required fields

Usable attic layout
Basement layout