Domus Navitas. Građevinska tvrtka - generalni izvođač obiteljskih kuća. Radimo od ponedjeljka do petka (7:00–15:00).
Kontaktirajte nas – pon-pet, 7:00–15:00

ADRIATIC 18

Opis projekta

Smještena na njegovanoj parceli uz more, ova upečatljiva dvoetažna vila sastoji se od isprepletenih bijelih kubičnih volumena koji se hrabro nadvijaju nad bujnim vrtovima. Rafinirana mješavina oštre žbuke, toplih drvenih ploča i škriljevca-sivog arhitektonskog betona stvara dinamičnu teksturnu paletu, dok ekspanzivno ostakljenje briše granicu između interijera i krajolika. Omotane terase i okvir dnevnog boravka u sjeni pergole neprekinuti su pogled na ocean, a integrirana dvostruka garaža diskretno je skrivena iza okomitih drvenih obloga. Omotač visokih performansi, naglasci zelenog krova i pasivna solarna orijentacija naglašavaju predanost kuće suvremenom, održivom luksuzu.

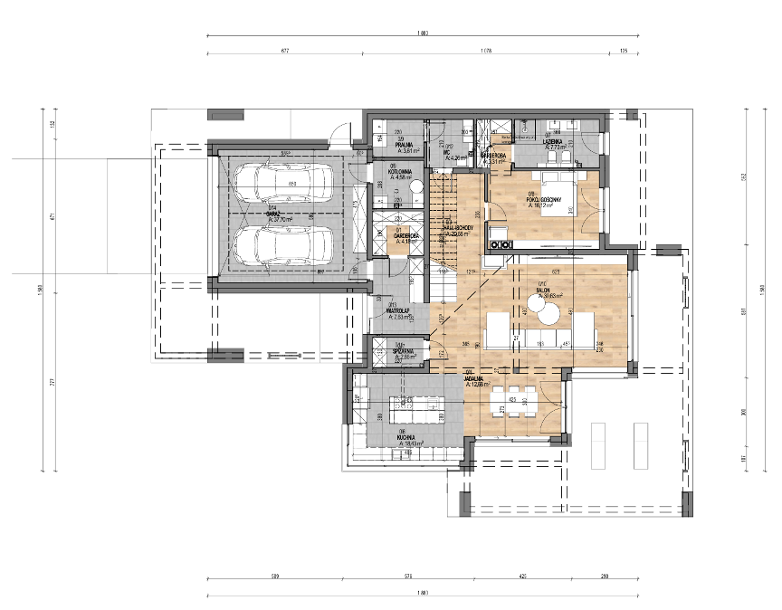
Tlocrt prizemlja
  • Ormar: 4,18 m²
  • Hodnik i stepenice: 20,68 m²
  • Blagovaonica: 12,68 m²
  • Kuhinja: 18.43 m²
  • Kupaonica: 7.73 m²
  • Ormar: 3,31 m²
  • Soba za goste: 16.12 m²
  • Kotlovnica: 4,58 m²
  • Praonica rublja: 3,61 m²
  • Dnevni boravak: 30.63 m²
  • Ostava: 2,86 m²
  • WC: 4,26 m²
  • Ulazni hodnik: 7,63 m²
  • Garaža: 37,70 m²
  • Ukupno: 174.40 m²
Tlocrt prvog kata
  • Soba 2: 17,63 m²
  • Soba 1: 15,13 m²
  • Studija: 10,93 m²
  • Kupaonica: 9.01 m²
  • Hodnik i stepenice: 21,39 m²
  • Ormar: 3,32 m²
  • Kupaonica: 10,19 m²
  • Glavna spavaća soba: 12,82 m²
  • Ukupno: 100.42 m²

Tehnički podaci

Tip kuće:
Katnica
Broj soba:
6
Broj kupaonica:
3 kupaonice
Tip garaže:
Dvokrevetna
Opseg gradnje:
Energetski učinkoviti developerski standard
Površina kata:
274,82 m²

Free estimate in 60 seconds

How much will your house cost? We know the answer!
Fill out the form and get your quote instantly!

Popularni projekti

Prizemnica
Površina: 180,33 m²
Neto cijena: 0 €
Prizemnica
Površina: 146,00 m²
Neto cijena: 0 €
Prizemnica
Površina: 120,36 m²
Neto cijena: 0 €
Katnica
Površina: 352,10 m²
Neto cijena: 0 €
  • Ormar: 4,18 m²
  • Hodnik i stepenice: 20,68 m²
  • Blagovaonica: 12,68 m²
  • Kuhinja: 18.43 m²
  • Kupaonica: 7.73 m²
  • Ormar: 3,31 m²
  • Soba za goste: 16.12 m²
  • Kotlovnica: 4,58 m²
  • Praonica rublja: 3,61 m²
  • Dnevni boravak: 30.63 m²
  • Ostava: 2,86 m²
  • WC: 4,26 m²
  • Ulazni hodnik: 7,63 m²
  • Garaža: 37,70 m²
  • Ukupno: 174.40 m²
Grundriss Erdgeschoss
  • Soba 2: 17,63 m²
  • Soba 1: 15,13 m²
  • Studija: 10,93 m²
  • Kupaonica: 9.01 m²
  • Hodnik i stepenice: 21,39 m²
  • Ormar: 3,32 m²
  • Kupaonica: 10,19 m²
  • Glavna spavaća soba: 12,82 m²
  • Ukupno: 100.42 m²
Tlocrt prvog kata
Tlocrt iskoristivog potkrovlja
  • Ormar: 4,18 m²
  • Hodnik i stepenice: 20,68 m²
  • Blagovaonica: 12,68 m²
  • Kuhinja: 18.43 m²
  • Kupaonica: 7.73 m²
  • Ormar: 3,31 m²
  • Soba za goste: 16.12 m²
  • Kotlovnica: 4,58 m²
  • Praonica rublja: 3,61 m²
  • Dnevni boravak: 30.63 m²
  • Ostava: 2,86 m²
  • WC: 4,26 m²
  • Ulazni hodnik: 7,63 m²
  • Garaža: 37,70 m²
  • Ukupno: 174.40 m²
Tlocrt prizemlja

Sviđa li vam se ovaj projekt?

ADRIATIC 18

Ispunite obrazac, a mi ćemo vas nazvati kako bismo vam dali besplatnu ponudu za izgradnju kuće u vašem području.

* Obavezna polja

Tlocrt podruma
  • Ormar: 4,18 m²
  • Hodnik i stepenice: 20,68 m²
  • Blagovaonica: 12,68 m²
  • Kuhinja: 18.43 m²
  • Kupaonica: 7.73 m²
  • Ormar: 3,31 m²
  • Soba za goste: 16.12 m²
  • Kotlovnica: 4,58 m²
  • Praonica rublja: 3,61 m²
  • Dnevni boravak: 30.63 m²
  • Ostava: 2,86 m²
  • WC: 4,26 m²
  • Ulazni hodnik: 7,63 m²
  • Garaža: 37,70 m²
  • Ukupno: 174.40 m²
Ground floor layout
  • Soba 2: 17,63 m²
  • Soba 1: 15,13 m²
  • Studija: 10,93 m²
  • Kupaonica: 9.01 m²
  • Hodnik i stepenice: 21,39 m²
  • Ormar: 3,32 m²
  • Kupaonica: 10,19 m²
  • Glavna spavaća soba: 12,82 m²
  • Ukupno: 100.42 m²
First floor layout

Do you like this project?

ADRIATIC 18

Fill out the form, and we’ll call you back to provide a free quote for building a house in your area.

* Required fields

Usable attic layout
Basement layout