Domus Navitas. Građevinska tvrtka - generalni izvođač obiteljskih kuća. Radimo od ponedjeljka do petka (7:00–15:00).
Kontaktirajte nas – pon-pet, 7:00–15:00

ADRIATIC 11

Opis projekta

Smještena na padini prošaranoj divljim cvijećem iznad mora, ova dvoetažna planinska kuća spaja živopisni krov od terakote s čistom bijelom žbukom i postoljem od prirodnog kamena koje učvršćuje zgradu u padinu. Visoki ostakljeni zabat snima širok pogled na vodu i preplavljuje unutrašnjost svjetlošću, dok se klizna vrata otvaraju na drvenu palubu za jednostavan život u zatvorenom i na otvorenom. Na donjoj razini nalazi se integrirana dvostruka garaža, a krovni prozori privlače sunčevu svjetlost u potkrovlje. Kompaktan, energetski učinkovit i pun karaktera, ovaj dom nudi moderan pogled na klasičnu obalnu vikendicu.

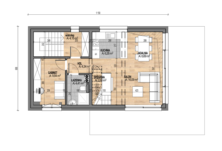
Tlocrt prizemlja
  • Ured: 9,84 m²
  • Dvorana: 4.34 m²
  • Blagovaonica: 6,69 m²
  • Kuhinja: 6,28 m²
  • Kupaonica: 4.41 m²
  • Dnevni boravak: 16.09 m²
  • Ostava: 0,67 m²
  • Predvorje: 4,15 m²
  • Ukupno: 52.47 m²
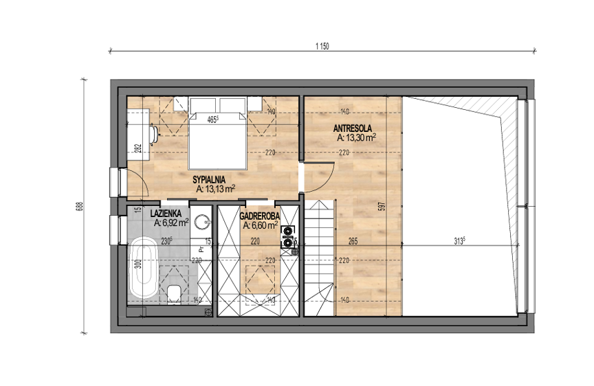
Tlocrt iskoristivog potkrovlja
  • Polukat: 8.68 m²
  • Ormar: 4.34 m²
  • Kupaonica: 4,55 m²
  • Spavaća soba: 8,35 m²
  • Ukupno: 25.92 m²
Tlocrt podruma
  • Garaža: 34,48 m²
  • Soba 1: 7,94 m²
  • Pomoćna prostorija: 17,25 m²
  • Soba 2: 7,94 m²
  • Predvorje: 3,67 m²
  • Ukupno: 71.28 m²

Tehnički podaci

Tip kuće:
Prizemnica s potkrovljem
Broj soba:
3
Broj kupaonica:
2 kupaonice
Tip garaže:
Dvokrevetna
Opseg gradnje:
Energetski učinkoviti developerski standard
Površina kata:
149,67 m²

Free estimate in 60 seconds

How much will your house cost? We know the answer!
Fill out the form and get your quote instantly!

Popularni projekti

Prizemnica
Površina: 120,36 m²
Neto cijena: 0 €
Prizemnica
Površina: 85,31 m²
Neto cijena: 0 €
Prizemnica s potkrovljem
Površina: 181,62 m²
Neto cijena: 0 €
Prizemnica
Površina: 63,08 m²
Neto cijena: 0 €
  • Ured: 9,84 m²
  • Dvorana: 4.34 m²
  • Blagovaonica: 6,69 m²
  • Kuhinja: 6,28 m²
  • Kupaonica: 4.41 m²
  • Dnevni boravak: 16.09 m²
  • Ostava: 0,67 m²
  • Predvorje: 4,15 m²
  • Ukupno: 52.47 m²
Grundriss Erdgeschoss
Tlocrt prvog kata
  • Polukat: 8.68 m²
  • Ormar: 4.34 m²
  • Kupaonica: 4,55 m²
  • Spavaća soba: 8,35 m²
  • Ukupno: 25.92 m²
Tlocrt iskoristivog potkrovlja
  • Ured: 9,84 m²
  • Dvorana: 4.34 m²
  • Blagovaonica: 6,69 m²
  • Kuhinja: 6,28 m²
  • Kupaonica: 4.41 m²
  • Dnevni boravak: 16.09 m²
  • Ostava: 0,67 m²
  • Predvorje: 4,15 m²
  • Ukupno: 52.47 m²
Tlocrt prizemlja

Sviđa li vam se ovaj projekt?

ADRIATIC 11

Ispunite obrazac, a mi ćemo vas nazvati kako bismo vam dali besplatnu ponudu za izgradnju kuće u vašem području.

* Obavezna polja

  • Garaža: 34,48 m²
  • Soba 1: 7,94 m²
  • Pomoćna prostorija: 17,25 m²
  • Soba 2: 7,94 m²
  • Predvorje: 3,67 m²
  • Ukupno: 71.28 m²
Tlocrt podruma
  • Ured: 9,84 m²
  • Dvorana: 4.34 m²
  • Blagovaonica: 6,69 m²
  • Kuhinja: 6,28 m²
  • Kupaonica: 4.41 m²
  • Dnevni boravak: 16.09 m²
  • Ostava: 0,67 m²
  • Predvorje: 4,15 m²
  • Ukupno: 52.47 m²
Ground floor layout
First floor layout

Do you like this project?

ADRIATIC 11

Fill out the form, and we’ll call you back to provide a free quote for building a house in your area.

* Required fields

  • Polukat: 8.68 m²
  • Ormar: 4.34 m²
  • Kupaonica: 4,55 m²
  • Spavaća soba: 8,35 m²
  • Ukupno: 25.92 m²
Usable attic layout
  • Garaža: 34,48 m²
  • Soba 1: 7,94 m²
  • Pomoćna prostorija: 17,25 m²
  • Soba 2: 7,94 m²
  • Predvorje: 3,67 m²
  • Ukupno: 71.28 m²
Basement layout